Background
Albion Park is a special place in Lake Coogee, where families, friends, and neighbours come together to relax and play.
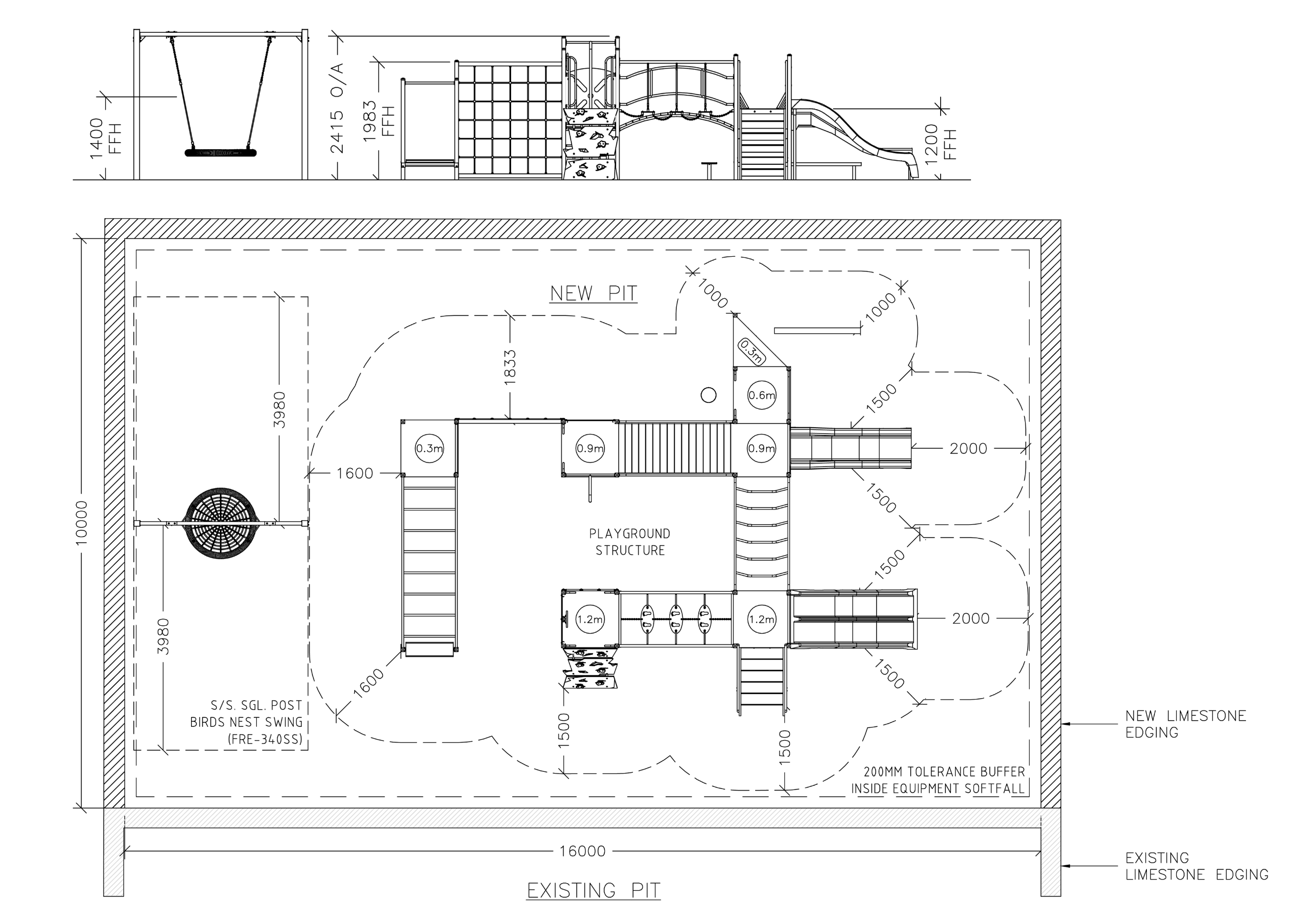
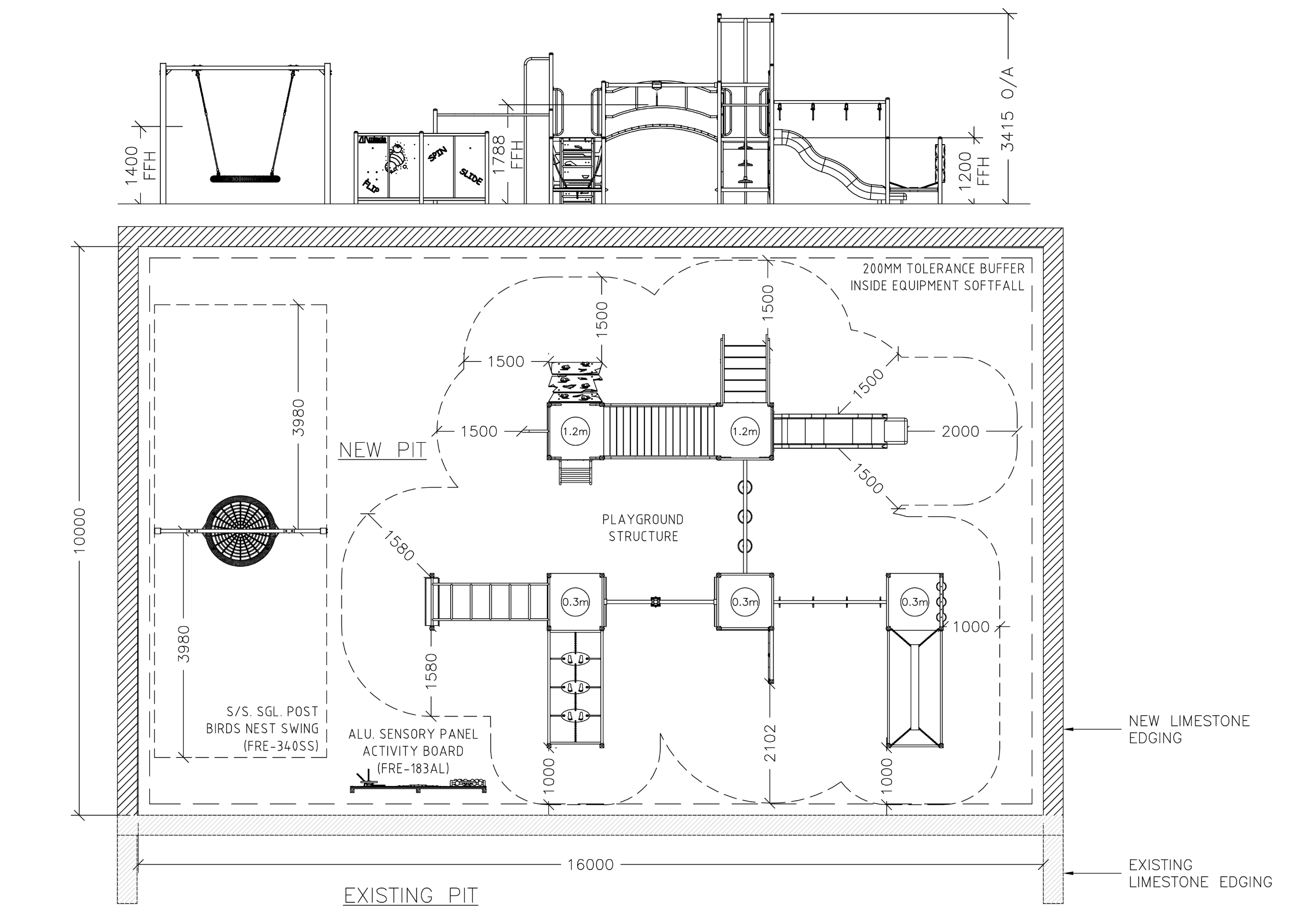
To make Albion Park even better, the City is planning to add a new junior playground. This will be a great addition to the existing playground, basketball pad, picnic shelter, BBQ area, and seating, creating more space for fun, connection, and community gatherings.
After looking closely at the park’s layout and environment, we’ve identified two possible locations for the new playground.
Which spot do you think works best? Your feedback will help us make the right choice for the whole community.
Once the ideal spot is chosen, we will come back to seek your input into some design options, so click the follow button and watch this space!
The existing amenities, including the larger playground will be staying and the addition of a new junior playground is part of our commitment to creating safe, inclusive, and engaging play spaces for children and families in our community.
Have your say
Choose your location! Feedback closes 4pm, Wednesday 12 November 2025.
View the two possible locations and complete the survey below.
Contact us for a hardcopy or electronic survey and return it to [email protected] or by post at City of Cockburn, PO Box 1215, Bibra Lake DC WA 6965.
Read the Frequently Asked Questions, call 08 9411 3444, or email us at [email protected]
