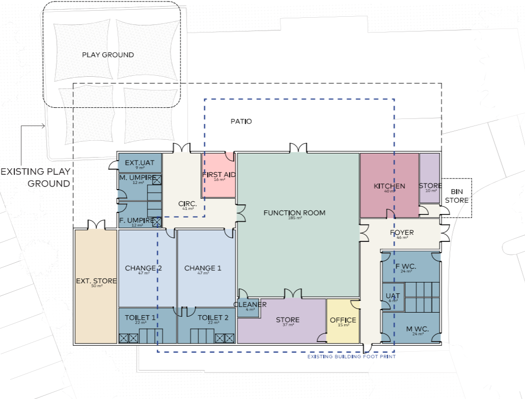
Vision Two

A new building with 2 changerooms. We'd love to hear your thoughts! Click on the spots to learn more about the areas.