Background

Bassett Reserve in North Lake is due a playground equipment renewal! The City will be replacing the playground north of the shade shelter with a full equipment renewal, with the swings at the playground south of the shelter being replaced (the slide and springer will remain).

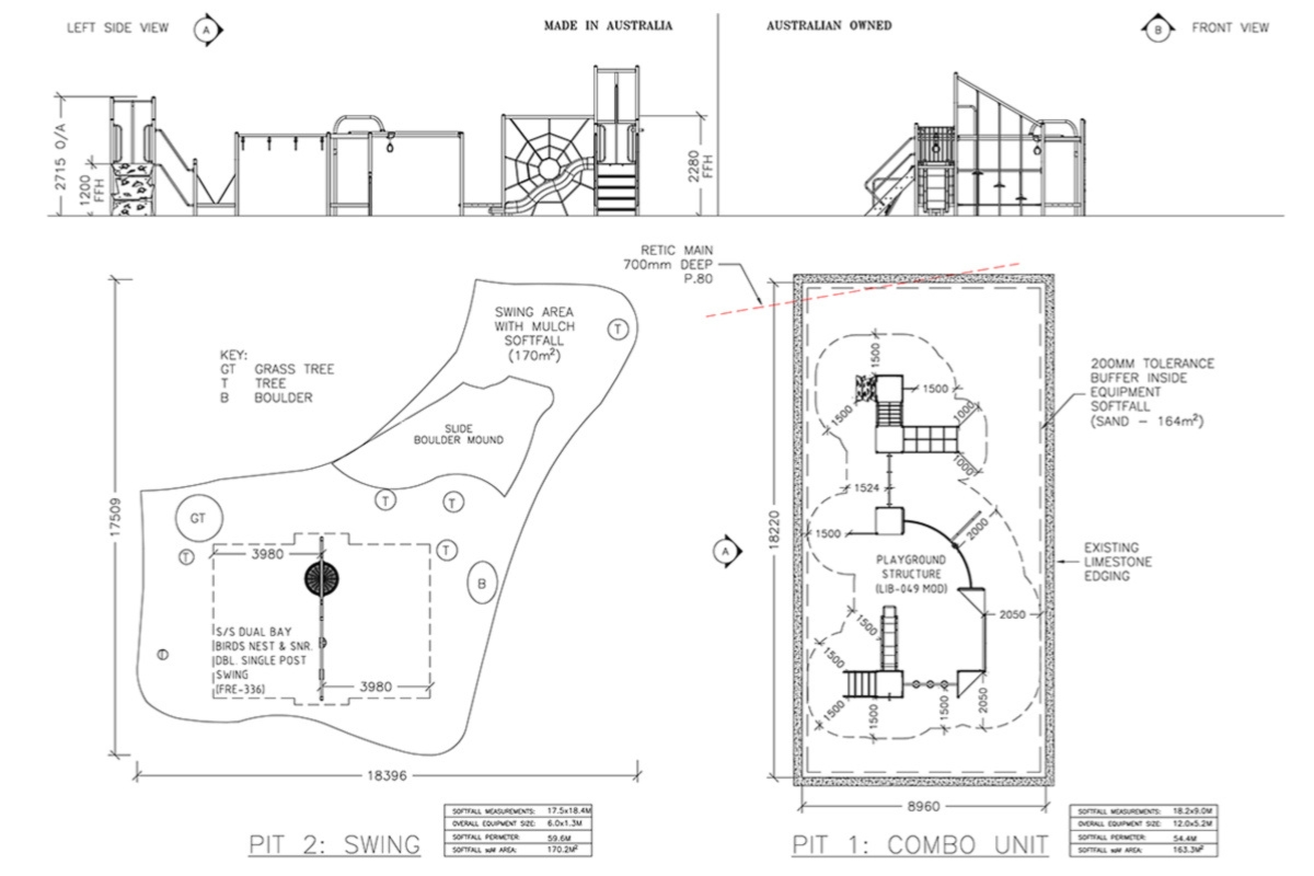
We have prepared two design options. View the options below and let us know your preference by ranking each option!

While the renewal designs may look a little different, each one offers a similar type of play experience as the existing equipment, with some exciting updates inspired by modern playground design.

This program focuses on replacing play equipment only. It doesn’t include additional features such as shade sails, seating, or BBQs. However, Bassett Reserve is also scheduled for a shade sail upgrade this financial year, which will be installed after the new playground equipment.

Have your say

Rank your favourite playground design option! Feedback closes 4pm, Sunday 15 February 2026.

View the playground design options and complete the survey below.

Contact us for a hardcopy or electronic survey and return it [email protected] or by post at City of Cockburn. PO Box 1215, Bibra Lake DC WA 6965.

Read the Frequently Asked Questions or call 08 9411 3444 or email us at [email protected]

Bassett Reserve Playground Equipment Renewal Design Option A

Bassett Reserve Playground Equipment Renewal Design Option B